وصف:
• Classification Series :Cable Branch Box Series • Product Name :DFW-12 American cable distribution box • Product Overview: low-voltage cable distribution box is a kind of electric cable to other equipment (non-power consumption equipment) to allocate power to install the outdoor installation of the closed sets of equipment...Product Structure
low-voltage cable distribution box is a kind of electric cable to other equipment (non-power consumption equipment) to allocate power to install the outdoor installation of the closed sets of equipment, ground-mounted, column mounted, hanging and embedded Into the type of 4, it is used for public three-phase system. Products meet GB7251.5 and IEC439-1 (1992) and other standards.
Use Environmental Conditions
1、The cabinet selection of 1.5mm thick cold-rolled steel or 1.2mm thick stainless steel production, the surface of the acid sprayed spray treatment, beautiful appearance.
2、The left and right sides of the box into the line, the following outlet hole, easy access.
3、The cabinet has a main grounding point, easy to connect with the ground.
4、 Box, baffle and other insulating parts with high heat and spark resistance, built-in or exterior parts with corrosion resistance and aging resistance.
5、The appearance of the protection level IP34D, when the cable is connected, the minimum protection level IP23C.
The Main Technical Parameters

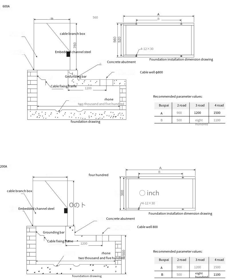
Outline dimension

Foundation drawing

حقوق الطبع والنشر © 2025 Boxd Group Co. ، Ltd.
يستخدم هذا الموقع ملفات تعريف الارتباط لضمان حصولك على أفضل تجربة على موقعنا.
تعليق
(0)